| Наименование | Страница | Код страницы |
|---|---|---|
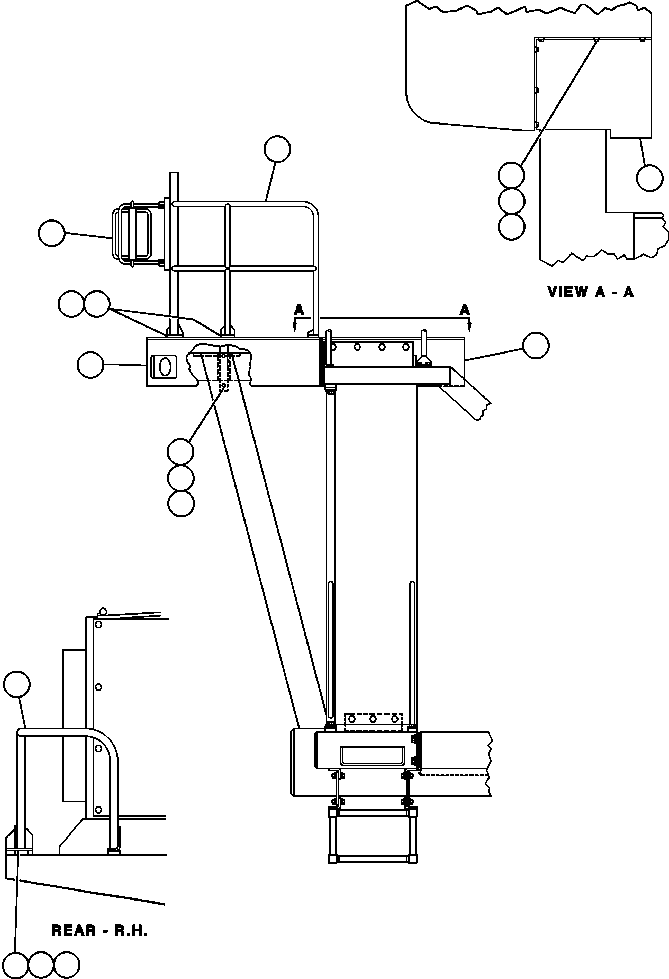
| R.H. HAND CONVEX MIRROR INSTL | 020 | 40241 |
| Номер на схеме | Каталожный номер | Название | Количество | Детали | |||
|---|---|---|---|---|---|---|---|
| ? | EC6901 | HANDRAIL - RIGHT FRONT | 1 | ||||
| ? | C1612 | CAPSCREW - 1/2" - 13NC X 1" | 22 | ||||
| ? | C1540 | LOCKWASHER - 1/2" | 22 | ||||
| ? | DD5640 | FLAT WASHER - 1/2" | 22 | ||||
| ? | EC6883 | DECK - R.H. | 1 | ||||
| ? | EC6631 | ADAPTOR, LADDER | 1 | ||||
| ? | DF3042 | FLAT WASHER - 3/8" | 12 | ||||
| ? | C1601 | CAPSCREW - 3/8" - 16NC X 3/4" | 12 | ||||
| ? | C0312 | LOCKWASHER - 3/8" | 12 | ||||
| ? | TY8386 | HANDRAIL - R.H. REAR | 1 | ||||
| ? | PB7491 | CONVEX MIRROR ASSM (SEE FIG 40241) | 1 | 40241 | |||
| ? | C1521 | NUT - 3/8" - 16NC | 4 |