| Номер на схеме | Каталожный номер | Название | Количество | Детали | |||
|---|---|---|---|---|---|---|---|
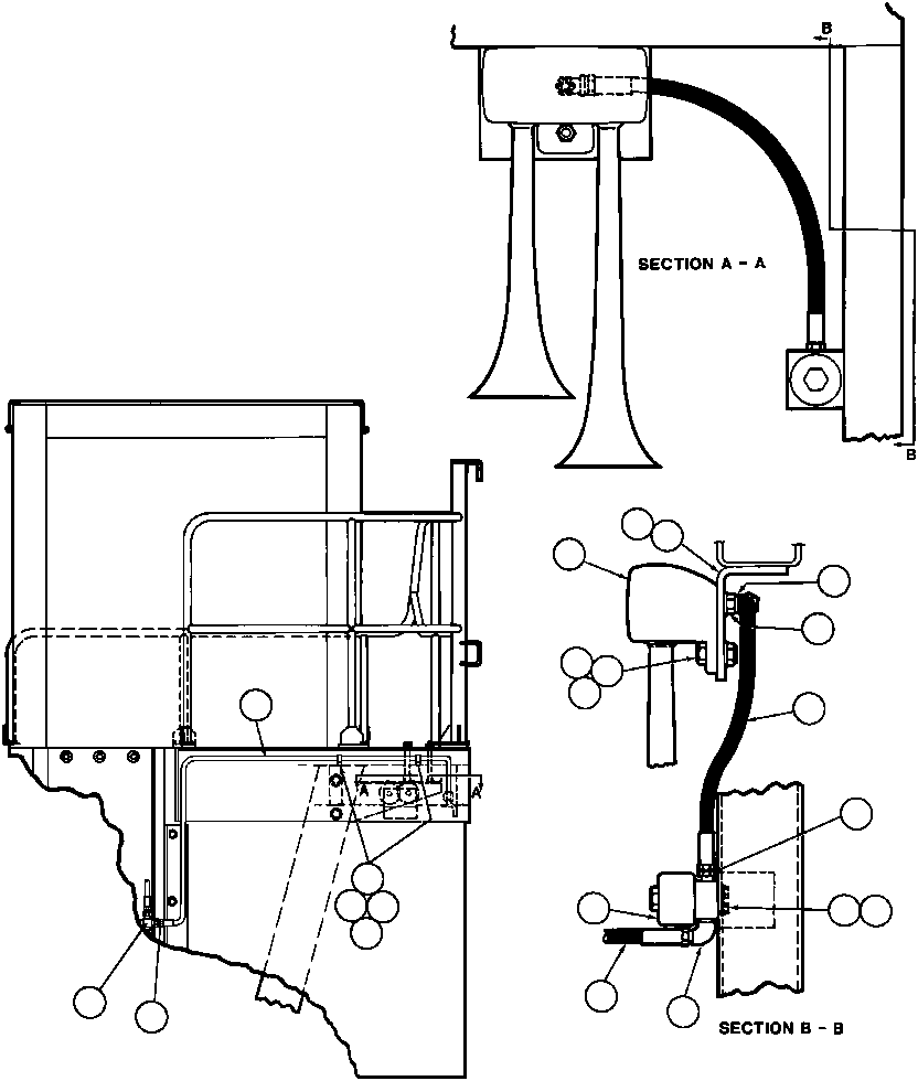
| ? | HA1181 | • HOSE | 1 | ||||
| ? | VC6241 | • • VALVE, SOLENOID | 1 | ||||
| ? | VH0596 | • • FITTING, TUBE | 1 | ||||
| ? | SC3117 | • • FLAT WASHER - #10 | 4 | ||||
| ? | WA4205 | • • CAPSCREW, HEX | 2 | ||||
| ? | SV7053 | • • ADAPTOR | 1 | ||||
| ? | HA0485 | • • HOSE | 1 | ||||
| ? | PB5987 | • • STEM, MOUNTING | 1 | ||||
| ? | H2862 | • • FITTING, PIPE | 1 | ||||
| ? | PB2961 | • • HORN ASSM | 1 | ||||
| ? | VJ9896 | • • SPRING | 1 | ||||
| ? | VJ8432 | • • BODY | 1 | ||||
| ? | VJ8433 | • • GASKET | 1 | ||||
| ? | VJ5748 | • • PROJECTOR, SHORT | 1 | ||||
| ? | VJ5749 | • • PROJECTOR, LONG | 1 | ||||
| ? | TR2435 | • • WASHER, TENSION | 1 | ||||
| ? | TR2434 | • • GASKET | 1 | ||||
| ? | H8620 | • • CAPSCREW - 5/16" - 18NC X 1 1/4" | 1 | ||||
| ? | C1538 | • • LOCKWASHER - 5/16" | 1 | ||||
| ? | C1520 | • • NUT - 5/16" - 18NC | 1 | ||||
| ? | VH9969 | • • WELD STUD - 3/8" - 16NC X 3/4" | 2 | ||||
| ? | TG2562 | • • CLAMP | 2 | ||||
| ? | TC1231 | • • LOCKWASHER - 3/8" | 2 | ||||
| ? | TC1233 | • • NUT - 3/8" | 2 | ||||
| ? | WB0383 | • • FITTING, TEE (SEE AIR SYSTEM PIPING PAGE) | 1 | ||||
| ? | WB0358 | • • FITTING | 1 | ||||
| ? | VZ3250 | • • DIODE | 1 |