k-part
Номер на схеме Каталожный номер Название Количество Детали
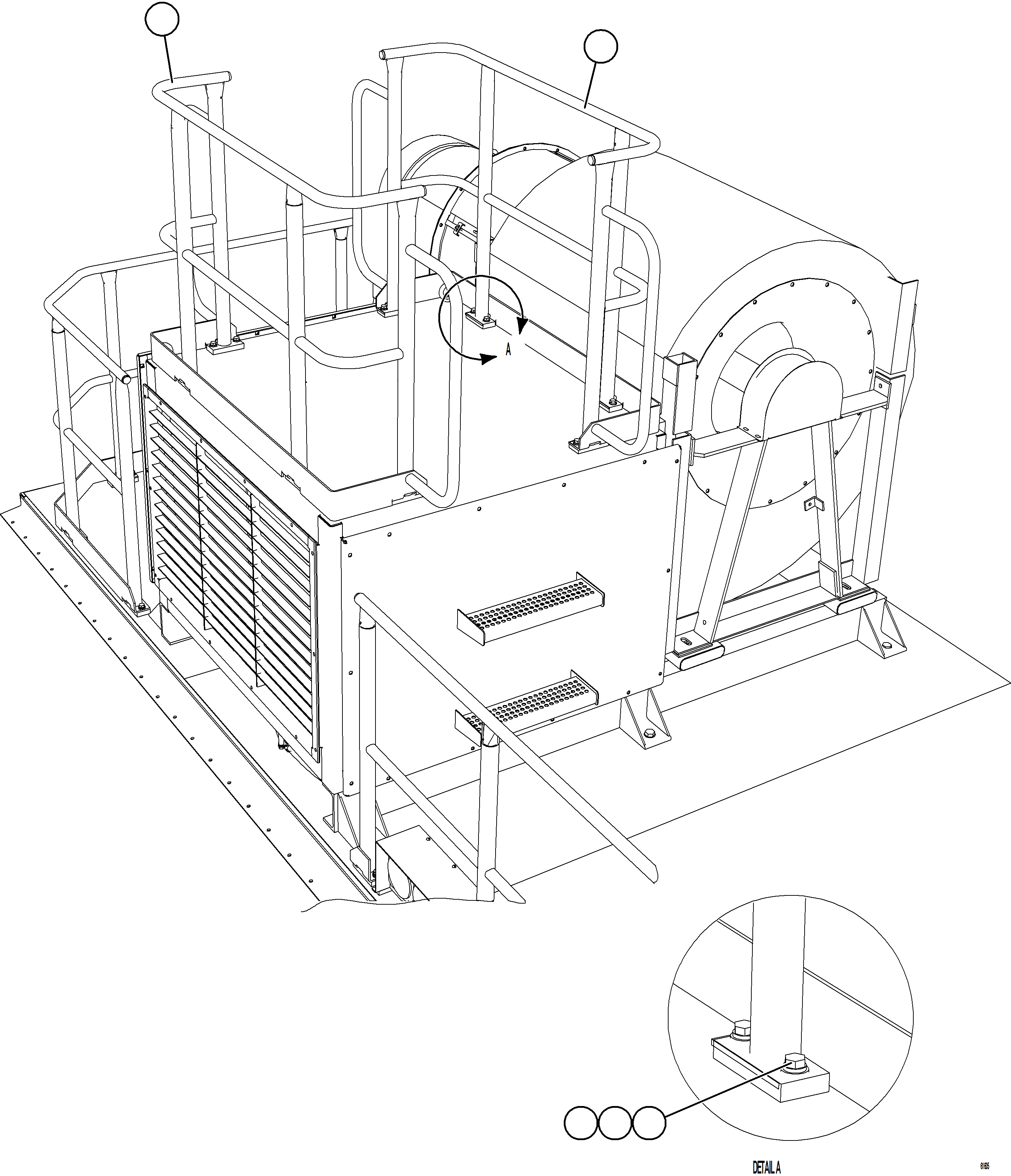
? XB0972 HANDRAIL, GRID 2
? MM0618 CAPSCREW - M12 X 1.75 X 30 16
? MM0472 LOCKWASHER - M12 16
? MM0714 FLAT WASHER - M12 16

Dump Trucks Komatsu / AFE66-C 860E-1K S/N A30107 - A30110 ASSMANG(AFE66-C) / RETARDING GRID HANDRAILS(034 : 61605)
?
?
?
?
?