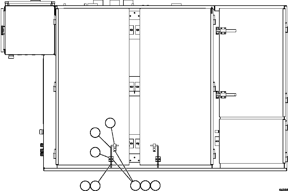
Найти k-part Содержание Dump Trucks Komatsu AFE62-AE 930E-4SE S/N A31245 - A31247, A31250 & A31252 SIERRA GORDA(AFE62-AE) CONTROL CABINET - DOOR STOPS 58F-43-00020(604 : 64385) Номер на схеме Каталожный номер Название Количество Детали ? XA5306 BRACKET, DOOR 2 ? XA5305 ROD, DOOR STOP 2 ? XA5307 BRACKET, DOOR 2 ? XA5283 PIN, COTTER 2 ? VE4516 FLAT WASHER - 3/8" 2 ? XA5287 CAPSCREW - 1/4" - 20NC X 7/8" 4 ? DC3584 LOCKWASHER - 1/4" 4 ? SP8417 FLAT WASHER - 1/4" 4 ? ? ? ? ? ? ? ?