k-part
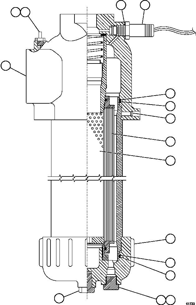
Номер на схеме Каталожный номер Название Количество Детали
? PB6770 COUPLING, MALE QUICK DISCONNECT 1
? XA5166 PRESSURE SWITCH ASSEMBLY 1
? PC2897 HYDRAULIC FILTER ASSEMBLY 1
? • HEAD, FILTER (1) 1
? WA0055 • O-RING 1
? TF5194 • O-RING 1
? TG4083 • O-RING 2
? BF2196 • RING, BACKUP 2
? BF2197 • SCREW, SET 1
? AK3570 • ELEMENT, FILTER 1
? BF4801 • CORE 1
? BF3632 • COVER ASSEMBLY 1
? • • CAP, FILTER (1) 1
? VM0315 • • PLUG 1
? SV9812 • • O-RING 1
? BF2209 • • PLUG, BOTTOM 1
? NOTE: (1) NOT SERVICED SEPARATELY.

Dump Trucks Komatsu / AFE62-AE 930E-4SE S/N A31245 - A31247, A31250 & A31252    SIERRA GORDA(AFE62-AE) / HYDRAULIC FILTER - HOIST/BRAKE COOLING     XB3937(432 : 61730)
?
?
?
?
?
?
?
?
?
?
?
?
?
?
?
?