k-part
Номер на схеме Каталожный номер Название Количество Детали
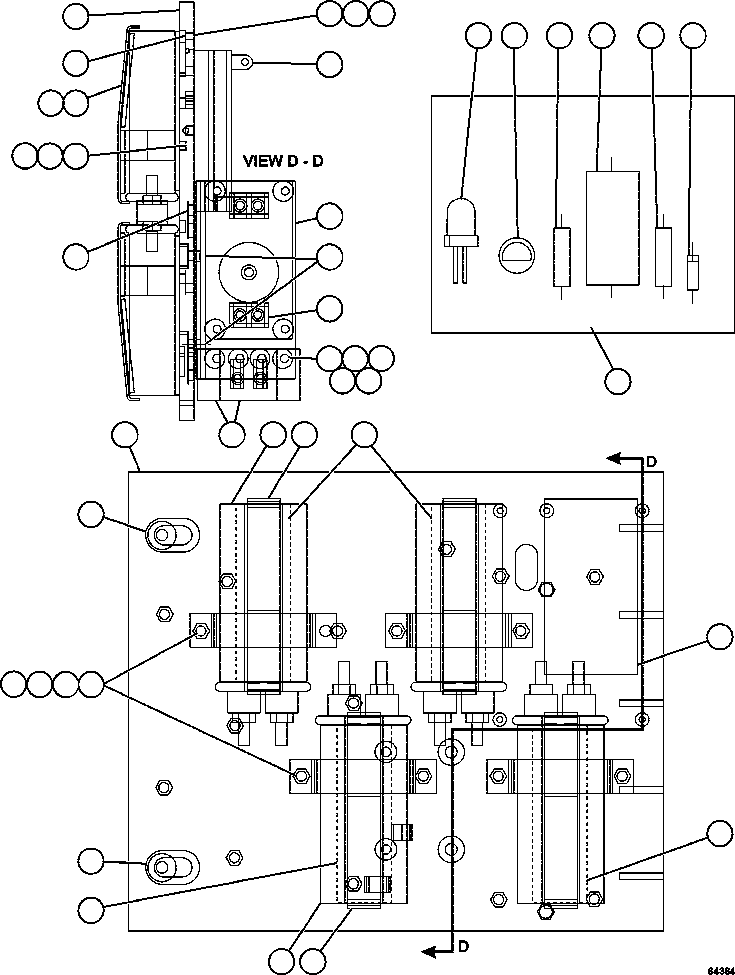
? 58B-43-00500 BASE 1
? VE3847 CONDENSER 4
? VE5967 CLAMP 4
? 58B-43-00610 GASKET 4
? DECAL (1) 1
? 58B-43-00600 WASHER, RETAINING 2
? VJ6586 CAPSCREW - #10 - 32NF X 3/4" 10
? VS6662 FLAT WASHER - #10
? VE4601 LOCKWASHER - #10
? SF2755 NUT - #10 - 32NF
? HE5125 FLAT WASHER - #6 4
? DF4944 LOCKWASHER - #6 4
? VE5959 NUT 4
? VS6823 RESISTOR - 10 OHM, 50W 2
? VE5976 SCREW - #6 - 40NF X 7/8" 1
? 58B-43-00590 BRACKET 1
? VE4610 SCREW - #10 - 32NF X 5/8" 4
? XA5817 MODULE 2
? 58B-43-00520 • RESISTOR 2
? 58B-43-00530 • CAPACITOR 2
? 58B-43-00540 • DIODE 2
? 58B-43-00550 • TRANSFORMER 2
? 58B-43-00560 • BOARD, TERMINAL 2
? 58B-43-00570 • RESISTOR 2
? VE6548 • CAPACITOR 2
? VE4597 WASHER - 1/2" 8
? VE5974 SCREW - #10 - 32NF X 1 1/8" 5
? VS6820 MODULE 2
? VS6990 • RESISTOR 2
? VS6996 • RESISTOR 2
? VE2616 • DIODE 2
? VS7210 • CAPACITOR 2
? VS7214 • DIODE 2
? VS6610 • TRANSIPAD 2
? VP9597 SCREW - #6 - 40NF X 5/8" 3
? NOTE: (1) NOT SERVICED SEPARATELY.

Dump Trucks Komatsu / AFE62-AV 930E-4SE S/N A31717, A31719, A31721 - A31722, A31739, A31741 & A31743  COLLAHUASI(AFE62-AV) / A.F.S.E. PANEL COVER ASSEMBLY   2/2   58B-43-00480(654 : 64384)
?
?
?
?
?
?
?
?
?
?
?
?
?
?
?
?
?
?
?
?
?
?
?
?
?
?
?
?
?
?
?
?
?
?
?
?
?
?
?
?
?
?
?