k-part
Номер на схеме Каталожный номер Название Количество Детали
? GE0860 RESISTOR ASSEMBLY 2
? GE1177 • RESISTOR 1
? VE1959 • BUSHING 1
? GE1342 • STRIP, CONNECTION 1
? BF0931 PANEL, AIR TEMPERATURE 1
? VE5042 • BOARD, TERMINAL 1
? BF0932 • SENSOR, THERMISTOR 1
? VE4343 FLAT WASHER - 5/16"
? VE4696 LOCKWASHER - 5/16"
? VE5013 NUT - 5/16" - 18NC
? VE4699 LOCKWASHER - 1/2"
? VE4698 NUT - 1/2" - 13NC
? VE4519 FLAT WASHER - 1/2"
? WA0471 CAPSCREW - 1/2" - 13NC X 2 1/4"
? GE1392 BUS BAR 2
? GE0876 BASE ASSEMBLY 3
? GE1387 PANEL, RECTIFIER (IGBT) 3
? 58E-43-10010 • DIODE 1
? GE1405 BUS BAR 1
? GE1404 BUS BAR 1
? GE0148 PANEL, FILTER ASSEMBLY 1
? VE4379 • RESISTOR 3
? VE0066 • RESISTOR - 250 OHM 6
? VE3846 • CAPACITOR 3
? GE1416 GROMMET 3
? VE4601 LOCKWASHER - #10
? VJ6586 CAPSCREW - #10 - 32NF X 3/4"
? SP8417 FLAT WASHER - 1/4"
? DC3584 LOCKWASHER - 1/4"
? TD1549 NUT - 1/4" - 20NC
? VX0421 CAPSCREW - 1/2" - 13NC X 3 1/4" 12
? XA3594 BUS BAR 1
? XA3597 BUS BAR 1
? GE0756 LINK SENSOR 1
? XA3596 BUS BAR 1
? VE4655 FLAT WASHER - #10
? 58B-43-00370 TERMINAL 5
? VZ2683 CORD GRIP 20
? GE0577 FITTING 4
? 58B-43-00230 CONNECTOR 6
? 58B-43-00330 LATCH, T-HANDLE 1
? VE4693 LOCKWASHER, SPLIT 2
? 58B-43-00400 SCREW - #10 - 32NC X 1 1/4" 2
? 58B-43-00310 SHIELD, GLASTIC 1
? VE3030 FLAT WASHER - 1/2"
? VE5062 CAPSCREW - 1/2" - 13NC 4
? VE4640 CAPSCREW - 3/8" - 16NC X 1 1/2"
? WA0720 FLAT WASHER - 3/8" (HARDENED)
? VE3918 WASHER
? VE4687 LOCKWASHER - 3/8"
? TC1233 NUT - 3/8" - 16NC
? (FOR VIEW A-A, SEE THE FOLLOWING PAGE.)

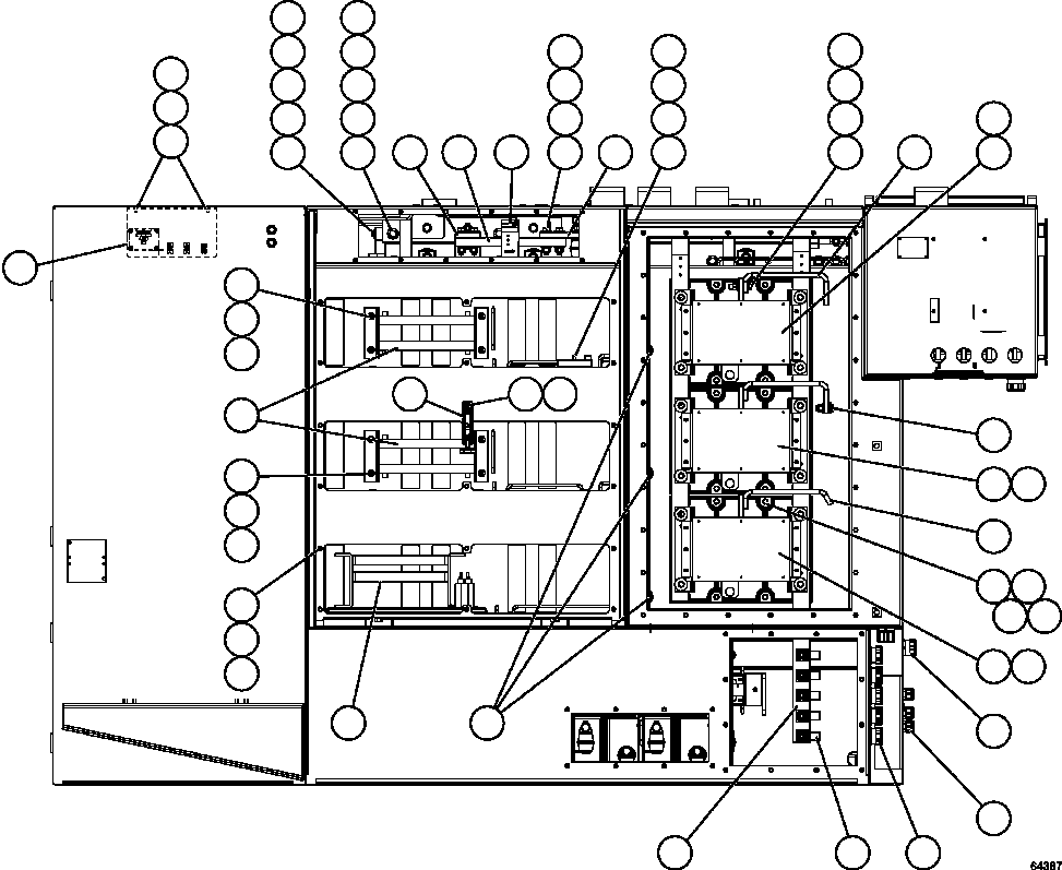
Dump Trucks Komatsu / AFE62-AV 930E-4SE S/N A31717, A31719, A31721 - A31722, A31739, A31741 & A31743  COLLAHUASI(AFE62-AV) / CONTROL CABINET - REAR VIEW(640 : 64387)
?
?
?
?
?
?
?
?
?
?
?
?
?
?
?
?
?
?
?
?
?
?
?
?
?
?
?
?
?
?
?
?
?
?
?
?
?
?
?
?
?
?
?
?
?
?
?
?
?
?
?
?
?
?
?
?
?
?
?
?
?
?
?