k-part
Номер на схеме Каталожный номер Название Количество Детали
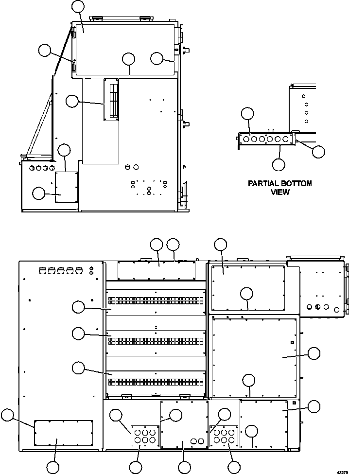
? GE1771 HINGE 2
? GE1769 DOOR ASSEMBLY 1
? GE1795 COVER 1
? GE1770 GASKET 2
? GE1772 GASKET 4
? XA5302 COVER 1
? XA5304 GASKET (5/8" X 1/4")
? XA5303 GASKET (1" X 1/4")
? XA5298 COVER 1
? GE0265 GASKET
? XA5297 COVER 1
? XA5309 COVER 1
? XA5301 COVER 1
? GE0297 GASKET (1 1/4" X 1/4")
? XA5300 COVER 1
? XA5935 COVER 1
? XA5300 COVER 1
? GE1789 COVER 1
? GE1790 COVER 3
? GE1787 COVER 1
? NOTE: NS = NOT SHOWN
? BF5597 CEMENT (1 QUART)

Dump Trucks Komatsu / AFE57-EP 830E-1AC S/N A30617 - A30618    VALE(AFE57-EP) / DOORS AND COVERS  2/2(660 : 43279)
?
?
?
?
?
?
?
?
?
?
?
?
?
?
?
?
?
?
?
?
?
?
?
?
?
?
?
?
?