k-part
Номер на схеме Каталожный номер Название Количество Детали
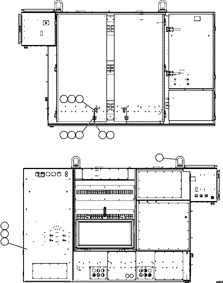
? XA5287 CAPSCREW - 1/4" - 20NC X 7/8" 14
? XA5003 LOCKWASHER - 1/4" 14
? XA4233 FLAT WASHER - 1/4" 14
? XA5283 PIN, COTTER 2
? VE4655 FLAT WASHER - #10 2
? XA5934 RING, HOIST 2
? VE4542 CAPSCREW - 1/2" - 13NC X 1" 10
? VE4699 LOCKWASHER - 1/2" 10
? VE4519 FLAT WASHER - 1/2" 10

Dump Trucks Komatsu / AFE57-EY 830E-1AC S/N A30639 - A30640    HUNTER VALLEY(AFE57-EY) / CONTROL CABINET - FRONT AND REAR EXTERIOR   PC3166(678 : 43276)
?
?
?
?
?
?
?
?
?
?
?
?