k-part
Номер на схеме Каталожный номер Название Количество Детали
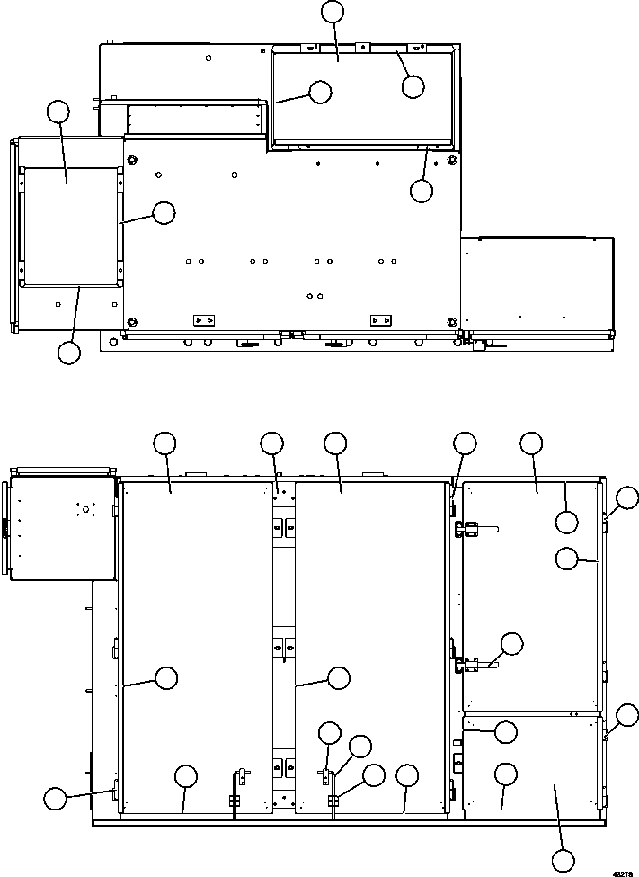
? XA5290 DOOR ASSEMBLY, CONTACTOR 1
? XA5291 GASKET 2
? GE1780 GASKET 2
? 58E-43-00440 DOOR ASSEMBLY, LH 1
? GE1779 GASKET 2
? GE1771 HINGE 14
? XA5295 DOOR ASSEMBLY, LH 1
? XA5289 POST, DOOR 1
? XA5294 DOOR ASSEMBLY, LH 1
? GE1784 GASKET 4
? 58E-43-00450 DOOR ASSEMBLY, RH 1
? GE1776 GASKET 4
? GE1785 GASKET 4
? GE1782 GASKET 2
? GE1242 LATCH & KEEPER 2
? XA5306 BRACKET, DOOR 2
? GE1777 GASKET 2
? XA5305 ROD, DOOR STOP 2
? GE1775 DOOR ASSEMBLY 1
? XA5307 BRACKET, DOOR 2
? NOTE: NS = NOT SHOWN
? BF5597 CEMENT (1 QUART)

Dump Trucks Komatsu / AFE57-FN 830E-1AC S/N A30688-A30689, A30698-A30703, A30705-A30708, A30713-A30714, A30728-A30731, A30736-A30737, A30749-A30752, A30756, A30776-A30778, A30788-A30790, A30803, A30805-A30806, A30817, A30834 & A30847 - A30850  BROCKMAN / HOPE DO(AFE57-FN) / DOORS AND COVERS  1/2(692 : 43278)
?
?
?
?
?
?
?
?
?
?
?
?
?
?
?
?
?
?
?
?
?
?
?
?
?
?
?
?