k-part
Наименование Страница Код страницы
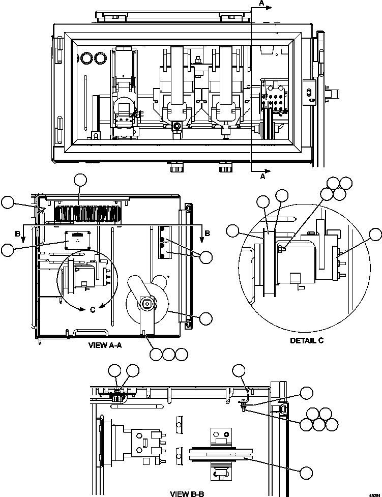
RELAY - CPR & GFR VG7043 714 64037

Номер на схеме Каталожный номер Название Количество Детали
? GE0177 BOARD, PRINTED WIRE 1
? GE1416 GROMMET 8
? GE0152 PANEL, RESISTOR 1
? VJ9059 • RESISTOR 2
? PB2685 • CONTACT CLIP 2
? BF4452 MODULE, SUPPRESSION 5
? PB5230 RESISTOR 1
? VJ6456 SHIELD 1
? VJ6455 BASE 1
? VJ6457 SHIELD 1
? XA5274 CAPSCREW - 1/4" - 20NC X 1 1/4" 8
? XA5003 LOCKWASHER - 1/4"
? VE4902 NUT - 1/4" - 20NC
? VE7202 WASHER - 1/4" 4
? VG7043 RELAY - CPR & GFR (SEE INDEX) 2 64037
? VE5013 NUT - 5/16" - 18NC
? VE4696 LOCKWASHER - 5/16"
? VE4343 FLAT WASHER - 5/16"
? XA3593 SUPPORT 1
? VE4921 CAPSCREW - #10 - 32NF X 1"
? VE4600 FLAT WASHER - #10
? VE4655 FLAT WASHER - #10
? VE4601 LOCKWASHER - #10
? VE4602 NUT - #10 - 32NF
? XA3129 CAP, LENS 2
? XA3130 ADAPTER 2

Dump Trucks Komatsu / AFE57-GA 830E-1AC S/N A30773 - A30775 & A30786 - A30787  BLOOM LAKE(AFE57-GA) / CONTROL CABINET - CONTACTOR CABINET   58E-43-00020(694 : 43281)
?
?
?
?
?
?
?
?
?
?
?
?
?
?
?
?
?
?
?
?
?
?
?
?
?
?