k-part
Наименование Страница Код страницы
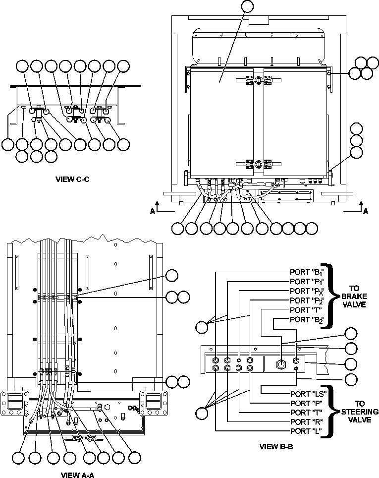
BRAKE CABINET ASSEMBLY (EK2165) 094 41752

Номер на схеме Каталожный номер Название Количество Детали
? EK2165 BRAKE CABINET ASSEMBLY (SEE INDEX)(1) 1 41752
? MM0620 CAPSCREW - M12 X 1.75 X 40 4
? MM0472 LOCKWASHER - M12 12
? MM0179 NUT - M12 X 1.75 4
? SM2014 CAP 2
? MM0623 CAPSCREW - M12 X 1.75 X 60 4
? MM0472 LOCKWASHER - M12 4
? HA6397 HOSE 2
? HA6173 HOSE 2
? HA5553 HOSE 1
? WB0386 FITTING, TEE 1
? HA7386 HOSE 1
? EF9801 FLAP, RUBBER 1
? MM0470 LOCKWASHER - M8 4
? MM0460 FLAT WASHER - M8 4
? MM0177 NUT - M8 X 1.25 4
? HA7358 HOSE - TO PORT "LS" (STEERING) 1
? (NOT USED THIS APPLICATION)
? MM0605 CAPSCREW - M10 X 1.50 X 25 9
? MM0471 LOCKWASHER - M10 15
? EF8174 CLAMP 2
? WB0430 FITTING, BULKHEAD 8
? EF8177 BRACKET 1
? WB0432 FITTING, BULKHEAD 1
? WB0427 FITTING, BULKHEAD 2
? HA7331 HOSE - TO PORT "B2" (BRAKE) 1
? HA7389 HOSE - TO PORT "T" (BRAKE) 1
? HA5569 HOSE - TO PORT "P" (STEERING) 1
? HA7331 HOSE - TO PORT "P2" (BRAKE) 1
? HA7382 HOSE - TO PORT "T" (STEERING) 1
? HA7360 HOSE - TO PORT "PX" (BRAKE) 1
? HA7331 HOSE - TO PORT "P1" (BRAKE) 1
? HA7331 HOSE - TO PORT "B1" (BRAKE) 1
? HA7382 HOSE - TO PORT "L" (STEERING) 1
? HA5569 HOSE - TO PORT "R" (STEERING) 1
? TG2568 CLAMP 8
? VN9913 CLAMP 2
? TY8375 SPACER 6
? MM0461 FLAT WASHER - M10 6
? MM0178 NUT - M10 X 1.50 6
? TG2960 CLAMP 2
? MM0714 FLAT WASHER - M12 (HARDENED) 4
? NOTE: (1) NOT SOLD AS AN ASSEMBLY.
? ORDER INDIVIDUAL COMPONENT PARTS.

Dump Trucks Komatsu / AFE50-GA 830E S/N GAE2144830E    ARCH MINERAL RUFFNER MINE-GLIDER KIT(AFE50-GA) / BRAKE CABINET/CAB PIPING(082 : 41476)
?
?
?
?
?
?
?
?
?
?
?
?
?
?
?
?
?
?
?
?
?
?
?
?
?
?
?
?
?
?
?
?
?
?
?
?
?
?
?
?
?
?
?
?
?
?
?
?
?
?
?
?
?
?
?
?
?
?