k-part
Наименование Страница Код страницы
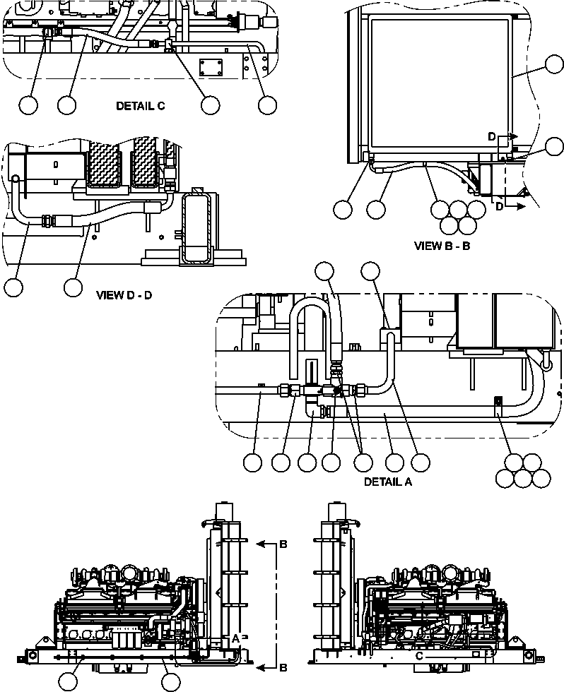
FUEL COOLER 176 41833

Номер на схеме Каталожный номер Название Количество Детали
? FITTING (SUPPLIED W/ ENGINE) 1
? HA7624 HOSE 1
? WA4708 CLAMP 10
? EH4063 TUBE 1
? EH4064 TUBE 1
? TC6058 CLAMP, VINYL - 1 1/2" I.D. 2
? VH9969 STUD, WELD - 3/8" - 16NC X 3/4" 6
? C1547 FLAT WASHER - 3/8" (PLAIN) 57
? C0312 LOCKWASHER - 3/8" 67
? C1521 NUT - 3/8" - 16NC 56
? HA4108 HOSE 1
? EH4054 TUBE 1
? HA5273 HOSE 1
? PC0315 VALVE, DIVERTER 1
? WB0274 FITTING, ELBOW - 90 DEG 1
? WB0493 FITTING, STRAIGHT 1
? WB0474 FITTING, STRAIGHT ADAPTER 4
? XA2832 COOLER, FUEL (SUPPLIED W/ RADIATOR) (SEE FIG 41833) 1 41833
? HA4803 HOSE 1

Dump Trucks Komatsu / AFE50-GC 830E S/N GAE2170 & GAE2173 & GAE2175 & GAE2177            GLIDER KIT(AFE50-GC) / ENGINE FUEL PIPING(174 : 41888)
?
?
?
?
?
?
?
?
?
?
?
?
?
?
?
?
?
?
?
?
?
?
?
?
?
?
?
?
?
?
?