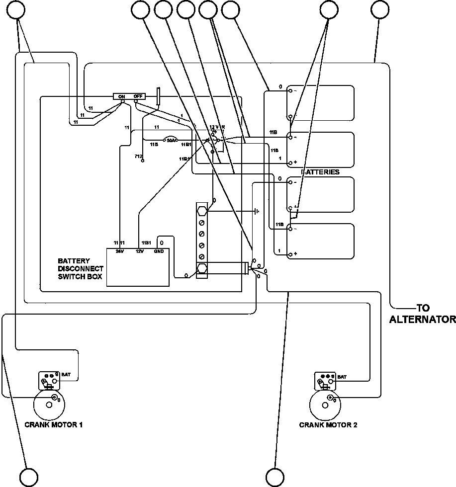
Найти k-part Содержание Dump Trucks Komatsu AFE50-GC 830E S/N GAE2170 & GAE2173 & GAE2175 & GAE2177 GLIDER KIT(AFE50-GC) BATTERY & ELECTRIC STARTER WIRING(232 : 41631) Номер на схеме Каталожный номер Название Количество Детали ? CH3848 CABLE 2 ? CH4030 CABLE 1 ? CH4131 CABLE 2 ? CH3851 CABLE 1 ? CH4029 CABLE 1 ? CH3844 CABLE 1 ? CH3850 CABLE 1 ? CH4050 CABLE 2 ? CH3870 CABLE 2 ? ? ? ? ? ? ? ? ? ?