| Наименование | Страница | Код страницы |
|---|---|---|
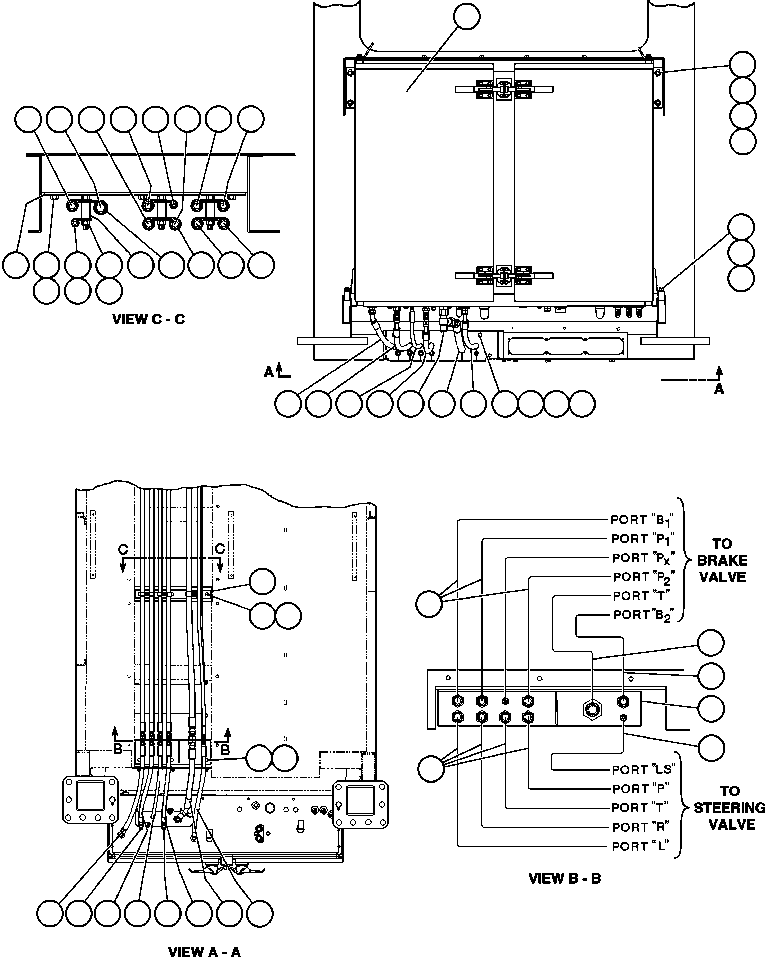
| BRAKE CABINET ASSEMBLY - 1 (EG7842) | 202 | 55146 |
| Номер на схеме | Каталожный номер | Название | Количество | Детали | |||
|---|---|---|---|---|---|---|---|
| ? | EG7842 | BRAKE CABINET ASSEMBLY (SEE INDEX) | 1 | 55146 | |||
| ? | MM0620 | CAPSCREW - M12 X 1.75 X 40 | 4 | ||||
| ? | MM0472 | LOCKWASHER - M12 | 12 | ||||
| ? | MM0179 | NUT - M12 X 1.75 | 4 | ||||
| ? | SM2014 | CAP | 2 | ||||
| ? | MM0062 | CAPSCREW - M12 X 1.75 X 60 | 4 | ||||
| ? | MM0472 | LOCKWASHER - M12 | 4 | ||||
| ? | HA6397 | HOSE | 2 | ||||
| ? | HA6173 | HOSE | 2 | ||||
| ? | HA5553 | HOSE | 1 | ||||
| ? | WB0386 | FITTING, TEE | 1 | ||||
| ? | HA7386 | HOSE | 1 | ||||
| ? | EF9801 | FLAP, RUBBER | 1 | ||||
| ? | MM0470 | LOCKWASHER - M8 | 4 | ||||
| ? | MM0460 | FLAT WASHER - M8 | 4 | ||||
| ? | MM0177 | NUT - M8 X 1.25 | 4 | ||||
| ? | HA7358 | HOSE - TO PORT "LS" (STEERING) | 1 | ||||
| ? | WB0384 | FITTING, TEE | 2 | ||||
| ? | MM0605 | CAPSCREW - M10 X 1.50 X 25 | 9 | ||||
| ? | MM0471 | LOCKWASHER - M10 | 15 | ||||
| ? | EF8174 | CLAMP | 2 | ||||
| ? | WB0430 | FITTING, BULKHEAD | 8 | ||||
| ? | EF8177 | BRACKET | 1 | ||||
| ? | WB0432 | FITTING, BULKHEAD | 1 | ||||
| ? | WB0427 | FITTING, BULKHEAD | 2 | ||||
| ? | HA7331 | HOSE - TO PORT "B2" (BRAKE) | 1 | ||||
| ? | HA7389 | HOSE - TO PORT "T" (BRAKE) | 1 | ||||
| ? | HA5569 | HOSE - TO PORT "P" (STEERING) | 1 | ||||
| ? | HA7331 | HOSE - TO PORT "P2" (BRAKE) | 1 | ||||
| ? | HA7382 | HOSE - TO PORT "T" (STEERING) | 1 | ||||
| ? | HA7360 | HOSE - TO PORT "PX" (BRAKE) | 1 | ||||
| ? | HA7331 | HOSE - TO PORT "P1" (BRAKE) | 1 | ||||
| ? | HA7331 | HOSE - TO PORT "B1" (BRAKE) | 1 | ||||
| ? | HA7382 | HOSE - TO PORT "L" (STEERING) | 1 | ||||
| ? | HA5569 | HOSE - TO PORT "R" (STEERING) | 1 | ||||
| ? | TG2568 | CLAMP | 8 | ||||
| ? | VN9913 | CLAMP | 2 | ||||
| ? | TY8375 | SPACER | 6 | ||||
| ? | MM0461 | FLAT WASHER - M10 | 6 | ||||
| ? | MM0178 | NUT - M10 X 1.50 | 6 | ||||
| ? | TG2960 | CLAMP | 2 | ||||
| ? | MM0714 | FLAT WASHER - M12 (HARDENED) | 4 |