| Наименование | Страница | Код страницы |
|---|---|---|
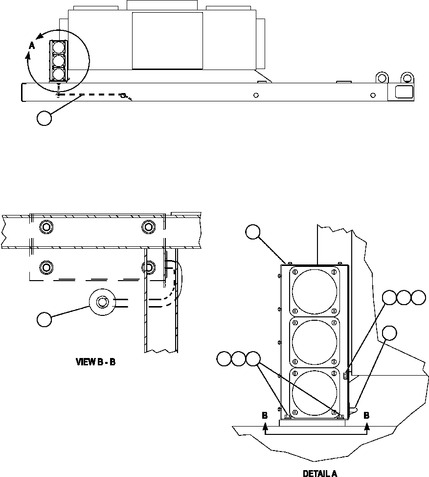
| PAYLOAD METER III - INDICATOR LIGHT ASSEMBLY | 452 | 55692 |
| Номер на схеме | Каталожный номер | Название | Количество | Детали | |||
|---|---|---|---|---|---|---|---|
| ? | EL4747 | INDICATOR LIGHT ASSEMBLY - PLM III (SEE FIG 55692) | 1 | 55692 | |||
| ? | EL0393 | HARNESS - R.H. PLM LIGHT | 1 | ||||
| ? | MM0461 | FLAT WASHER - M10 | 4 | ||||
| ? | MM0471 | LOCKWASHER - M10 | 4 | ||||
| ? | MM0605 | CAPSCREW - M10 X 1.50 X 25 (ZINC) | 4 | ||||
| ? | C1521 | NUT - 3/8" - 16NC | 1 | ||||
| ? | C1547 | FLAT WASHER - 3/8" | 1 | ||||
| ? | TG2562 | CLAMP, VINYL - 1/2" | 1 | ||||
| ? | VC6041 | GROMMET, RUBBER | 1 |