k-part
Наименование Страница Код страницы
LIGHT ASSEMBLY (SUPER HALOGEN) - 1 384 40869

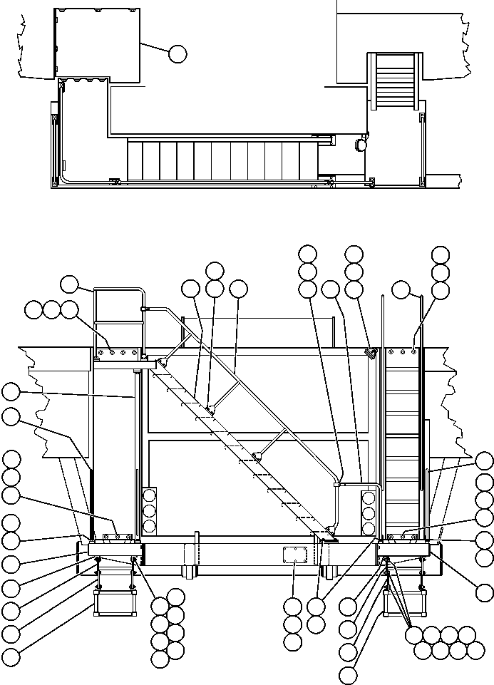
Номер на схеме Каталожный номер Название Количество Детали
? EC6167 HANDRAIL 1
? TR1376 CAPSCREW - 1/2" - 13NC X 1 1/4" 45
? WA4728 FLATWASHER - 1/2" 45
? YA2978 LADDER 1
? EC6424 SUPPORT, LADDER 1
? EC6165 HANDRAIL 1
? TD0791 CAPSCREW - 3/8" - 16NC X 1 1/4" 14
? WA4726 FLATWASHER - 3/8" 14
? TC1233 NUT - 3/8" - 16NC 14
? ED7016 LADDER - L.H. 1
? AK7503 FLOOD LIGHT ASSM (SEE FIG 40869) 1 40869
? SG2103 GROMMET, RUBBER 1
? TD0794 CAPSCREW - 5/16" - 18NC X 3/4" 1
? SC4174 LOCKWASHER - 5/16" 1
? C1540 LOCKWASHER - 1/2" 13
? ED5139 HANDRAIL 2
? C1604 CAPSCREW - 3/8" - 16NC X 1 1/2" 20
? C1521 NUT - 3/8" 20
? EC6162 HANDRAIL 1
? EC7230 BAR 4
? EB2102 BAR 4
? C0312 LOCKWASHER - 3/8" 20
? EC6553 STEP 2
? EC6554 STRAP, MOUNTING 4
? ED1035 STEP 2
? EC6574 ANGLE, FORMED 4
? EC7641 BASE, NAME PLATE 1
? WB0769 NAME PLATE, CAUTION TWO HOOKS 1
? WA3134 DRIVE SCREW - #6 - 32NC X 3/16" 6
? ED5126 PLATFORM - R.H. 1
? EC6631 ADAPTOR, LADDER 1
? ED5135 PLATFORM - L.H. 1

Dump Trucks Komatsu / AFE32-EW 830E S/N 32753 & 32757 BHP ROBINSON(AFE32-EW) / DIAGONAL LADDER INSTALLATION(012 : 41367)
?
?
?
?
?
?
?
?
?
?
?
?
?
?
?
?
?
?
?
?
?
?
?
?
?
?
?
?
?
?
?
?
?
?
?
?
?
?
?
?
?
?
?
?
?
?
?
?
?
?
?
?
?
?
?
?
?
?
?
?
?
?
?
?