| Номер на схеме | Каталожный номер | Название | Количество | Детали | |||
|---|---|---|---|---|---|---|---|
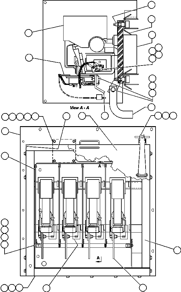
| ? | EC0703 | INSULATOR | 1 | ||||
| ? | MM0583 | CAPSCREW - M6 X 1 X 25 | 4 | ||||
| ? | MM0176 | NUT - M6 | 4 | ||||
| ? | MM0469 | LOCKWASHER - M6 | 8 | ||||
| ? | MM0459 | FLAT WASHER - M6 | 4 | ||||
| ? | EC4545 | MOUNT | 1 | ||||
| ? | EB9882 | ARC BARRIER ASSM | 5 | ||||
| ? | EB9878 | • BRACKET | 10 | ||||
| ? | EB9880 | • SHEET, INSULATION | 5 | ||||
| ? | MM0373 | • NUT - M5 | 20 | ||||
| ? | VC5344 | • FLAT WASHER - #10 | 20 | ||||
| ? | EC8970 | ASSM, BRACKET | 2 | ||||
| ? | EC1120 | • BRACKET | 2 | ||||
| ? | EC8966 | • BRACKET | 1 | ||||
| ? | MM0176 | • NUT - M6 | 2 | ||||
| ? | MM0459 | • FLAT WASHER - M6 | 2 | ||||
| ? | MM0580 | CAPSCREW - M6 X 1 X 14 | 4 | ||||
| ? | MM0469 | LOCKWASHER - M6 | 4 | ||||
| ? | MM0176 | NUT - M6 | 4 | ||||
| ? | EC4546 | PANEL | 1 | ||||
| ? | MM0603 | CAPSCREW - M10 X 1.50 X 16 | 4 | ||||
| ? | MM0461 | FLAT WASHER - M10 | 4 | ||||
| ? | TY5603 | BAR, BUS | 4 | ||||
| ? | ED8029 | CHANNEL, RUBBER | 8 | ||||
| ? | DA2030 | HOOK, HOOD | 8 | ||||
| ? | MM0051 | CAPSCREW - M8 X 1.25 X 50 | 8 | ||||
| ? | MM0692 | NUT, M8 X 1.25/8" | 8 | ||||
| ? | VJ9357 | BAR, BUS | 4 | ||||
| ? | ED3500 | ENCLOSURE, CONTACTOR | 1 | ||||
| ? | ED3488 | COVER | 1 | ||||
| ? | VW6069 | BOLT, INSULATED | 8 | ||||
| ? | VW6070 | SHIELD | 16 | ||||
| ? | PB4255 | MODULE, SUPPRESSION | 4 | ||||
| ? | PB4265 | ADAPTOR | 4 | ||||
| ? | PB6200 | ADAPTOR | 4 | ||||
| ? | WA3367 | NUT ASSM | 8 | ||||
| ? | MM0179 | NUT - M12 | 8 | ||||
| ? | MM0462 | FLAT WASHER - M12 | 8 | ||||
| ? | MM0619 | CAPSCREW - M12 X 1.75 X 35 | 8 | ||||
| ? | PB5754 | SPACER | 4 | ||||
| ? | PB6137 | CONTACTOR | 4 |