k-part
Номер на схеме Каталожный номер Название Количество Детали
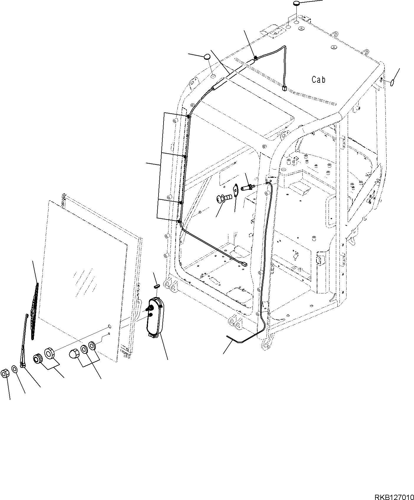
? 22N-54-R0530 CAB, ASSEMBLY 1
SN: F40001-
? 22M-54-24922 • WIPER MOTOR 1
SN: F40001-
? 22M-54-26450 • • ACCESSORY, ASSEMBLY 1
SN: F40001-
? 22M-54-24931 • WIPER BLADE 1
SN: F40001-
? 22M-54-24941 • ARM, WIPER 1
SN: F40001-
? 22M-06-24442 • WIRING HARNESS 1
SN: F40001-
? 08059-00413 • CLAMP 1
SN: F40001-
? 14X-911-4551 • CLAMP 4
SN: F40001-
? 01580-10806 • NUT 1
SN: F40001-
? 01643-30823 • WASHER 1
SN: F40001-
? 22M-54-16410 • PLATE 1
SN: F40001-
? 09415-02512 • CAP 1
SN: F40001-
? 22M-54-34980 • CAP 1
SN: F40001-
? 205-06-71590 • BRACKET 1
SN: F40001-
? 205-06-61220 • ATOMIZER, ASSEMBLY 1
SN: F40001-
? 01370-40412 • SCREW 2
SN: F40001-
? 17M-911-2670 • HOSE 1
SN: F40001-

Excavators Komatsu / PC55MR-5E0 S/N F40001 AND UP(PC55MR5E) / CAB, WIPER(K0210-003007 : K0210-003007)
?
?
?
?
?
?
?
?
?
?
?
?
?
?
?
?
?
?