| Номер на схеме | Каталожный номер | Название | Количество | Детали | |||
|---|---|---|---|---|---|---|---|
| ? | PB6770 | COUPLING, MALE QUICK DISCONNECT | 1 | ||||
| ? | PB5862 | • COUPLING, MALE QUICK DISCONNECT | 1 | ||||
| ? | 162144 | • CAP, DUST | 1 | ||||
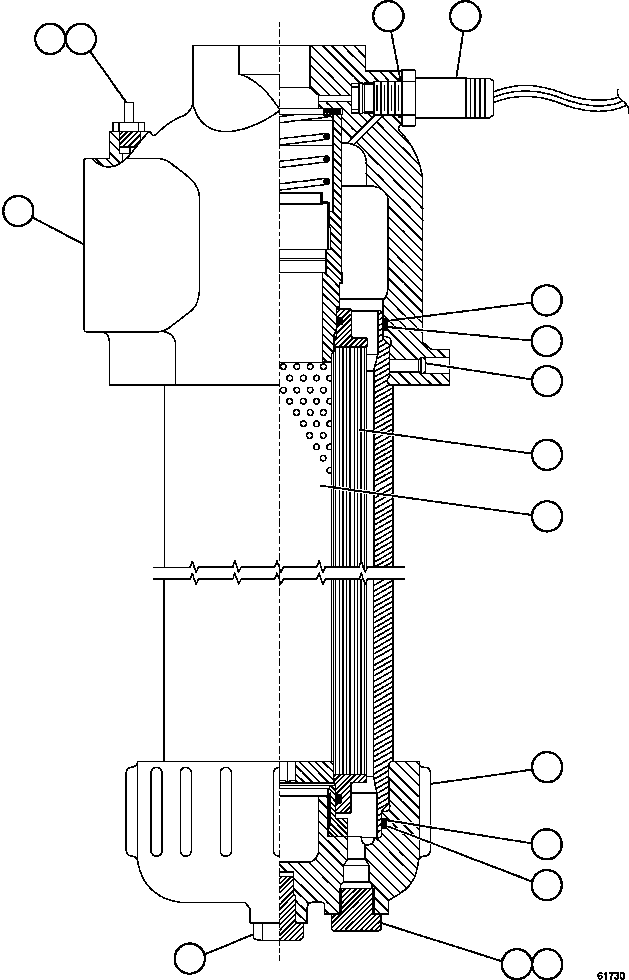
| ? | XA5166 | PRESSURE SWITCH ASSEMBLY | 1 | ||||
| ? | PC2897 | HYDRAULIC FILTER ASSEMBLY | 1 | ||||
| ? | • HEAD, FILTER (1) | 1 | |||||
| ? | WA0055 | • O-RING | 1 | ||||
| ? | TF5194 | • O-RING | 1 | ||||
| ? | TG4083 | • O-RING | 2 | ||||
| ? | BF2196 | • RING, BACKUP | 2 | ||||
| ? | BF2197 | • SCREW, SET | 1 | ||||
| ? | AK3570 | • ELEMENT, FILTER | 1 | ||||
| ? | BF4801 | • CORE | 1 | ||||
| ? | BF3632 | • COVER ASSEMBLY | 1 | ||||
| ? | BF2199 | • • CAP, FILTER | 1 | ||||
| ? | VM0315 | • • PLUG | 1 | ||||
| ? | SV9812 | • • O-RING | 1 | ||||
| ? | BF2194 | • • PLUG, BOTTOM | 1 | ||||
| ? | NOTE: (1) NOT SERVICED SEPARATELY. |