| Номер на схеме | Каталожный номер | Название | Количество | Детали | |||
|---|---|---|---|---|---|---|---|
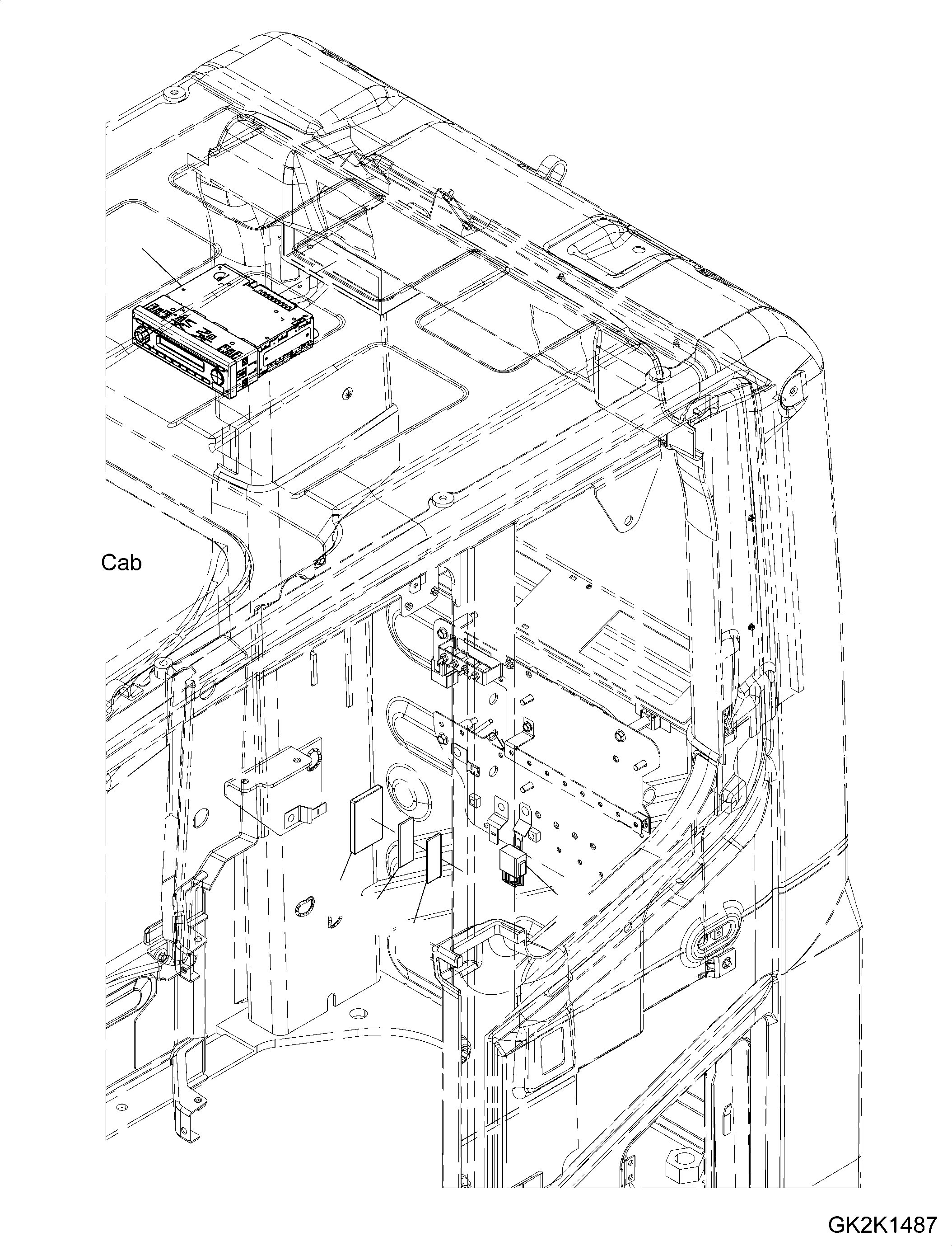
| ? | 421-07-H4160 | Radio, 24V, with CD, Model Calais USB40 | 1 | SN: H60051- KIT-FLAG: _- SCC: SERIALNO: H60051- |
|||
| ? | 20J-06-51420 | Switch, Radio, 24V | 1 | SN: H60051- KIT-FLAG: _- SCC: SERIALNO: H60051- |
|||
| ? | 421-07-H4180 | Radio, Remote Control Assembly | 1 | SN: H60051- KIT-FLAG: _- SCC: SERIALNO: H60051- |
|||
| ? | 421-07-H4170 | • Radio, Remote Control | 1 | SN: H60051- KIT-FLAG: _- SCC: SERIALNO: H60051- |
|||
| ? | 421-07-H4140 | • Tape, Recloseable Fastener | 1 | SN: H60051- KIT-FLAG: _- SCC: SERIALNO: H60051- |
|||
| ? | 421-07-H4140 | Tape, Recloseable Fastener | 1 | SN: H60051- KIT-FLAG: _- SCC: SERIALNO: H60051- |