k-part
Номер на схеме Каталожный номер Название Количество Детали
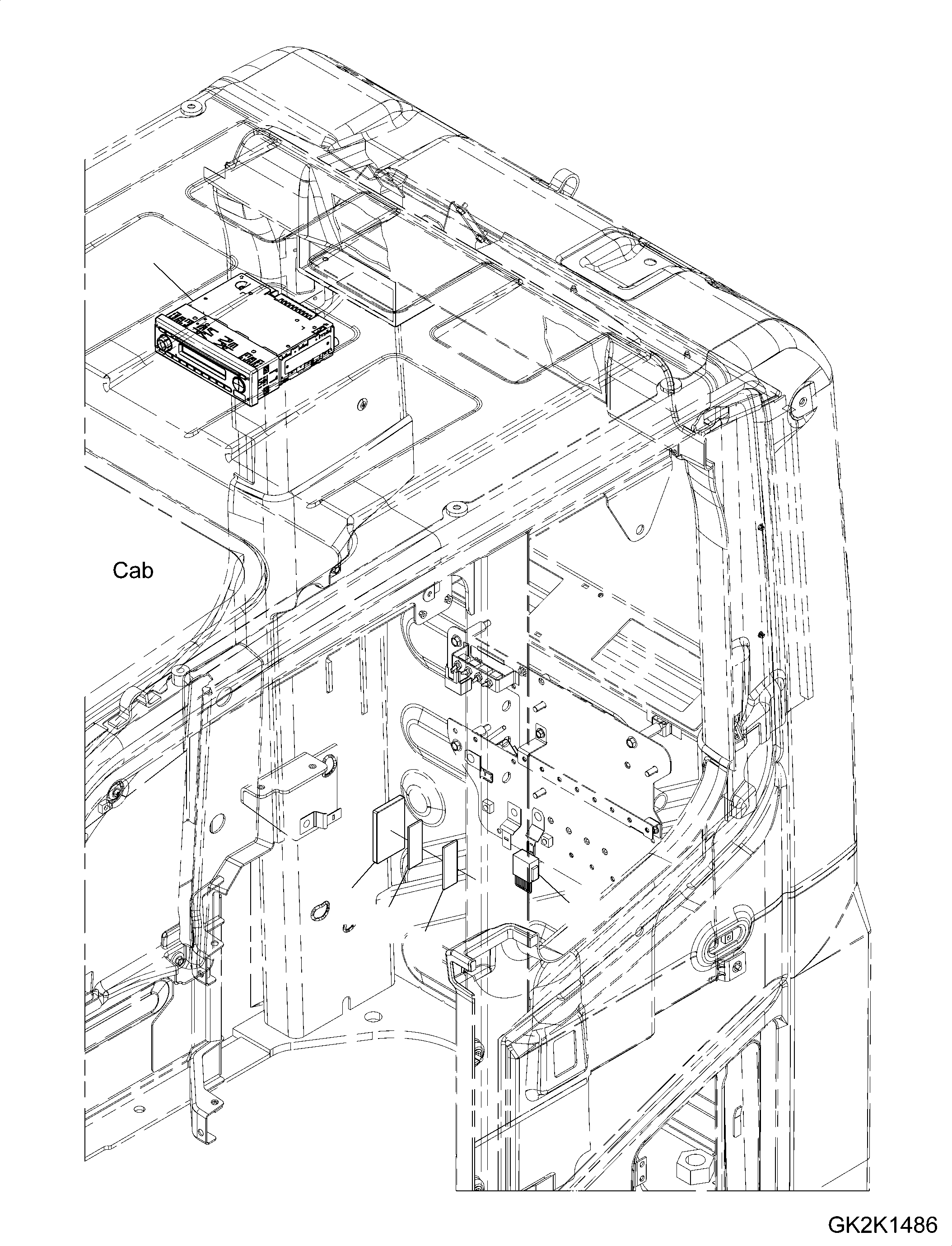
? 421-07-H4190 Radio, 12V, with CD, Model Calais USB80 1
SN: H60051-
KIT-FLAG: _-
SCC:
SERIALNO: H60051-
? 20J-06-51410 Switch, Radio, 12V 1
SN: H60051-
KIT-FLAG: _-
SCC:
SERIALNO: H60051-
? 421-07-H4180 Radio, Remote Control Assembly 1
SN: H60051-
KIT-FLAG: _-
SCC:
SERIALNO: H60051-
? 421-07-H4170 • Radio, Remote Control 1
SN: H60051-
KIT-FLAG: _-
SCC:
SERIALNO: H60051-
? 421-07-H4140 • Tape, Recloseable Fastener 1
SN: H60051-
KIT-FLAG: _-
SCC:
SERIALNO: H60051-
? 421-07-H4140 Tape, Recloseable Fastener 1
SN: H60051-
KIT-FLAG: _-
SCC:
SERIALNO: H60051-

Excavators Komatsu / PW180-10 S/N H60051-UP(PW18010H) / Radio, 12V, with CD(K003001 : K0185-001001)
?
?
?
?
?