| Номер на схеме | Каталожный номер | Название | Количество | Детали | |||
|---|---|---|---|---|---|---|---|
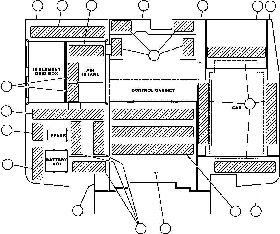
| ? | TY9255 | STRIP, ANTI-SLIP | 2 | ||||
| ? | TY9257 | STRIP, ANTI-SLIP | 5 | ||||
| ? | TY9258 | STRIP, ANTI-SLIP | 7 | ||||
| ? | TY9254 | STRIP, ANTI-SLIP | 3 | ||||
| ? | TY9256 | STRIP, ANTI-SLIP | 4 | ||||
| ? | YA2347 | DECK, CENTER | 1 | ||||
| ? | C1657 | • CAPSCREW - 3/4" - 10NC X 6" (L.H.) | 1 | ||||
| ? | C1656 | • CAPSCREW - 3/4" - 10NC X 5" (R.H.) | 1 | ||||
| ? | TW3914 | • PAD (R.H.) | 1 | ||||
| ? | EC6113 | • PAD (L.H.) | 1 | ||||
| ? | WA0362 | • FLAT WASHER - 3/4" | 2 | ||||
| ? | PB8065 | • PLUG, DOME | 2 | ||||
| ? | TZ7603 | DECK, CENTER REAR | 1 | ||||
| ? | C1527 | • NUT - 3/4" - 10NC | 4 | ||||
| ? | C1542 | • LOCKWASHER - 3/4" | 4 | ||||
| ? | C1651 | • CAPSCREW - 3/4" - 10NC X 3 3/4" | 4 | ||||
| ? | WA0362 | • FLAT WASHER - 3/4" | 4 | ||||
| ? | EC6145 | DECK, LEFT REAR | 1 | ||||
| ? | TF2449 | • FLAT WASHER - 3/4" | 6 | ||||
| ? | C7645 | • CAPSCREW - 3/4" - 10NC X 5" | 6 | ||||
| ? | YA2714 | DECK, OUTSIDE LEFT | 1 | ||||
| ? | C1656 | • CAPSCREW - 3/4" - 10NC X 5" | 4 | ||||
| ? | TF2449 | • FLAT WASHER - 3/4" | 4 | ||||
| ? | EC6144 | WALKWAY, INSIDE LEFT | 1 | ||||
| ? | C1656 | • CAPSCREW - 3/4" - 10NC X 5 1/2" | 4 | ||||
| ? | TF2449 | • FLAT WASHER - 3/4" | 4 | ||||
| ? | YA2341 | COVER - L.H. | 1 | ||||
| ? | EC9061 | ADAPTER, LADDER | 1 | ||||
| ? | EC6883 | DECK - R.H. | 1 | ||||
| ? | C1542 | • LOCKWASHER - 3/4" | 8 | ||||
| ? | C5764 | • CAPSCREW - 3/4" - 10NC X 6" | 4 | ||||
| ? | WA0362 | • FLAT WASHER - 3/4" | 8 |